Entreparedes Porto Housing
Porto, Portugal
2024–2018
Porto, Portugal
Main façade
Rear façade
Location: Porto, Portugal
Scope of Services: Architecture and landscape architecture
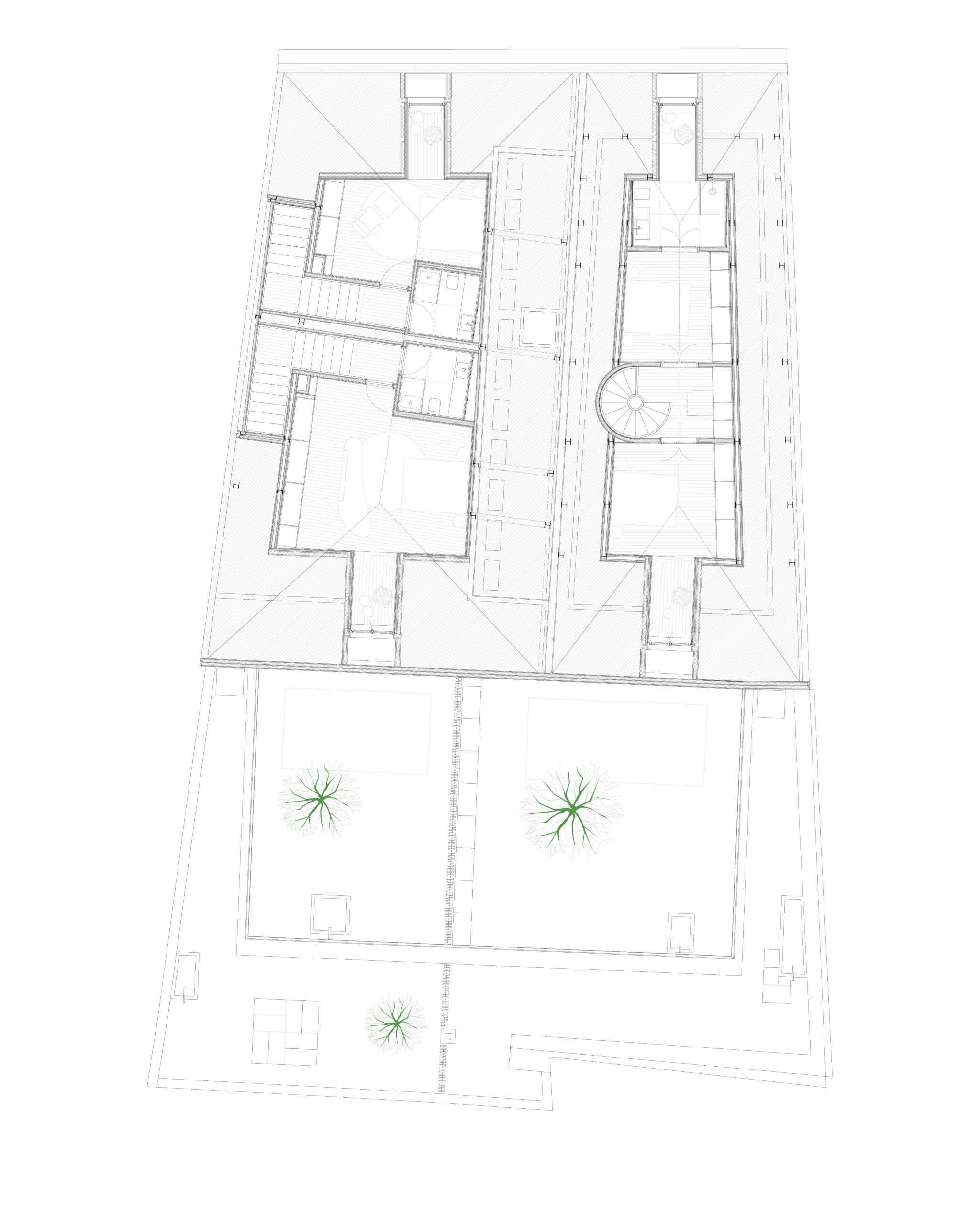
Project Brief: 5-storey residential building renovation with 1- 2- 3- and 4-bedroom units
Project Status: 2018 – 2024
Photography: Tiago Ventura Sales
Ground floor patio