GIMM
Lisbon, Portugal
2026–2025
Gulbenkian Institute for Molecular Medicine competition
The result of a merger between the Gulbenkian Institute of Science (IGC) and the Instituto de Medicina Molecular João Lobo Antunes (iMM), currently operating in Oeiras and at the FMUL/ULS Santa Maria in Lisbon, GIMM—while presently based across these two original sites—seeks a singular space for the effective fusion of all its capabilities and mission. This space is to be integrated into the Lisbon University City hub, maintaining a strong connection to the Santa Maria health park and the Faculties of Medicine and Pharmacy of the University of Lisbon.
Gulbenkian Institute for Molecular Medicine, Lisbon University
Study model
East façade
Section through the vivarium
North façade
South façade
East façade
West façade
Section through auditorium
Basement-level floor plan
1st-level floor plan
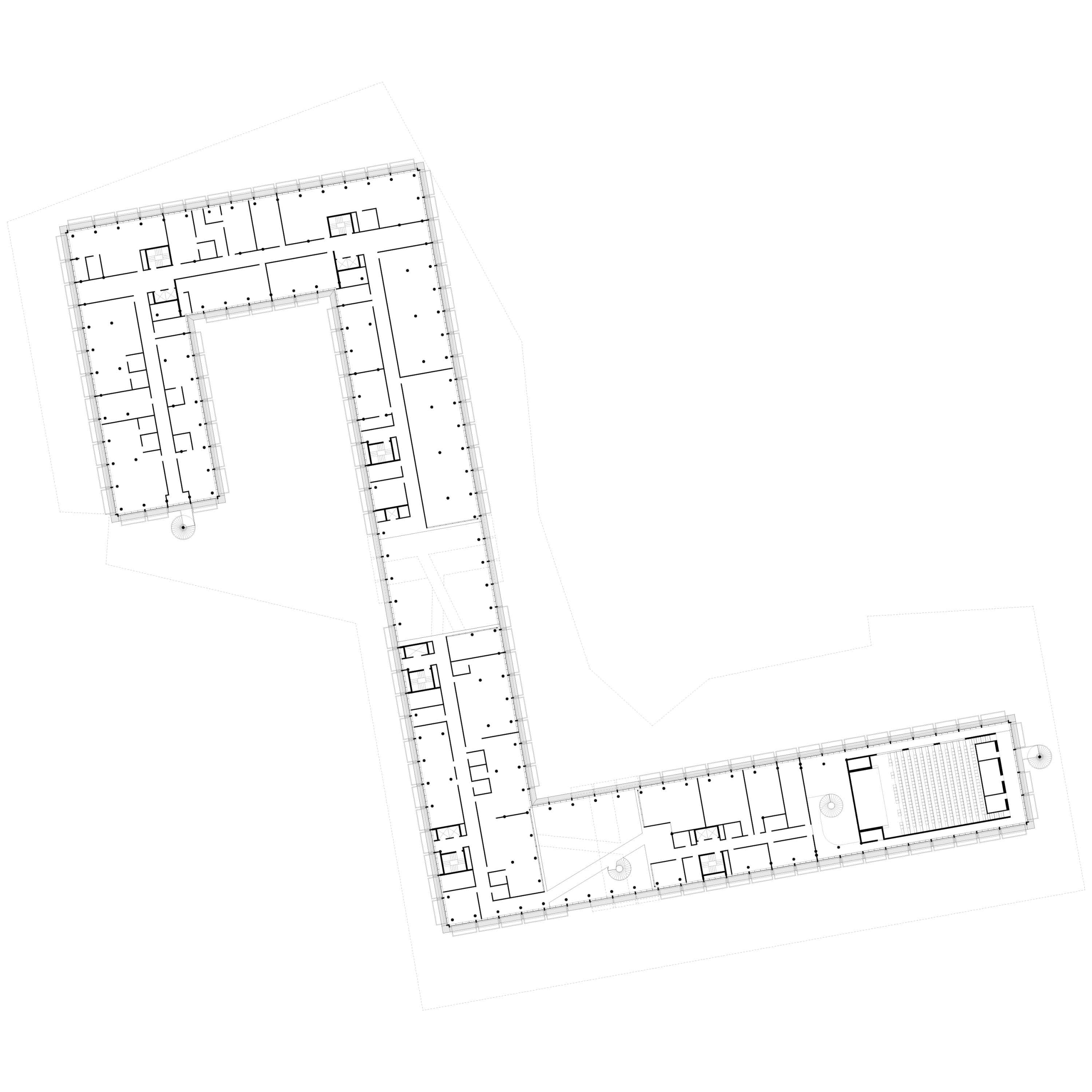
2nd-level floor plan (main access)
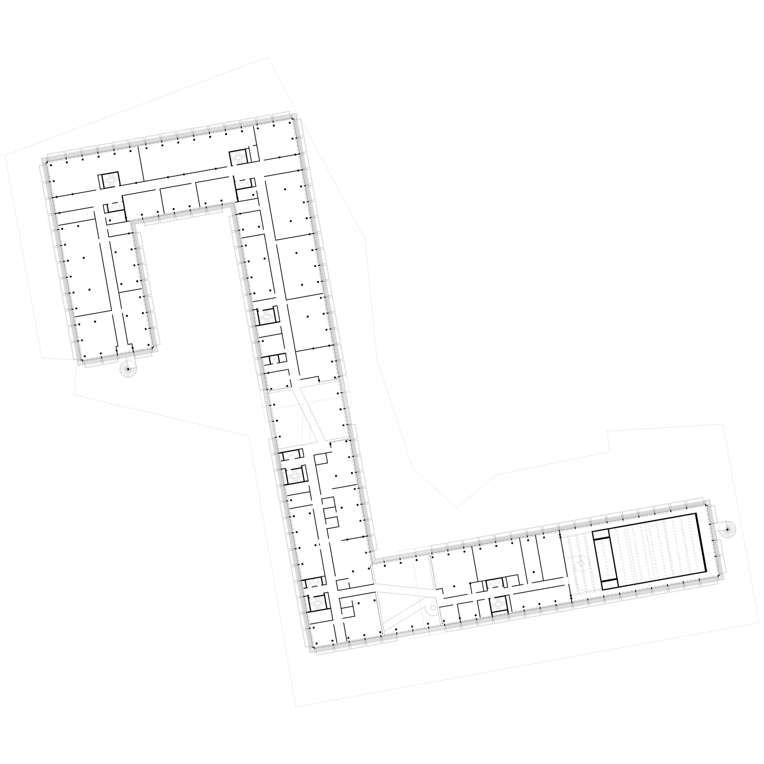
3rd-level floor plan
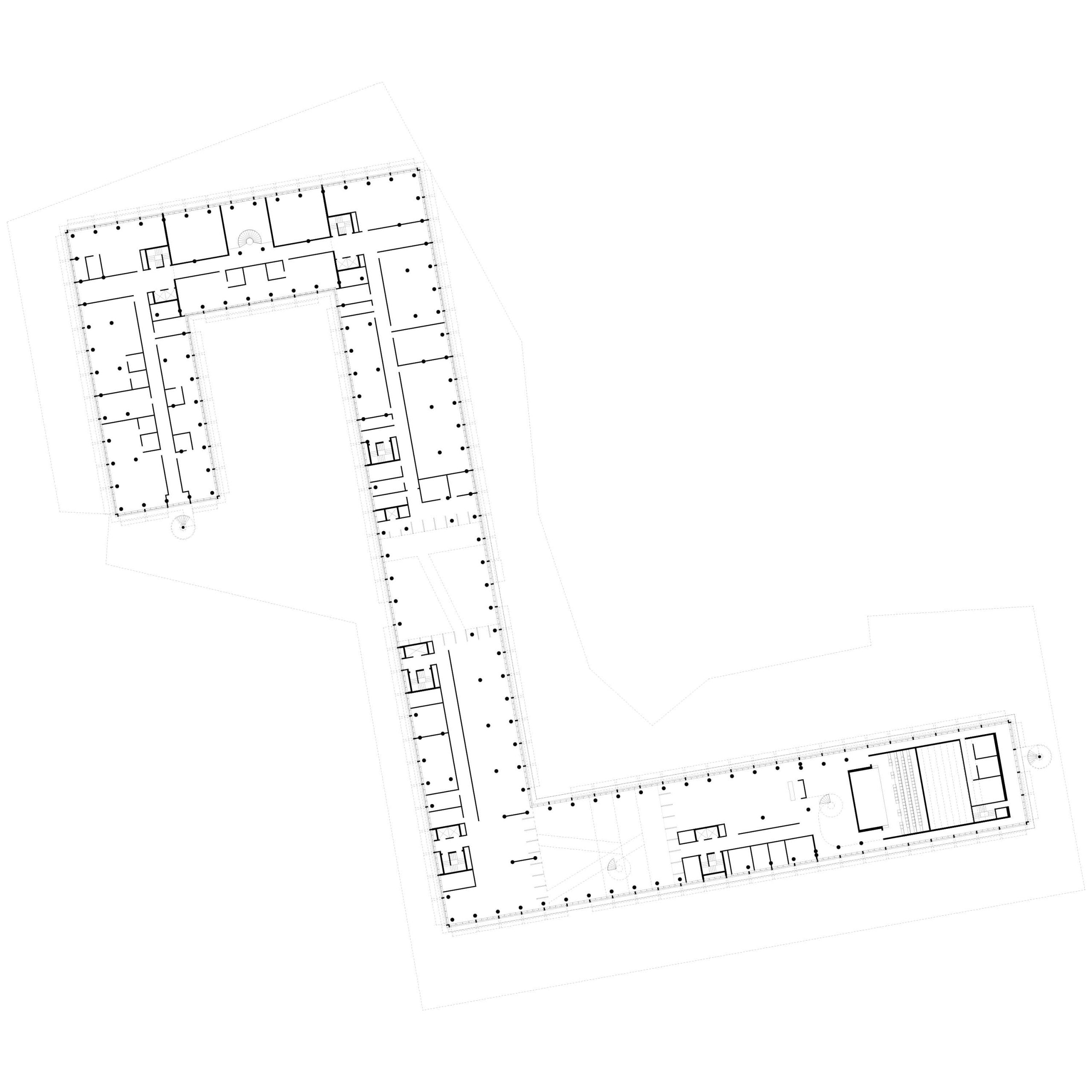
4th-level floor plan
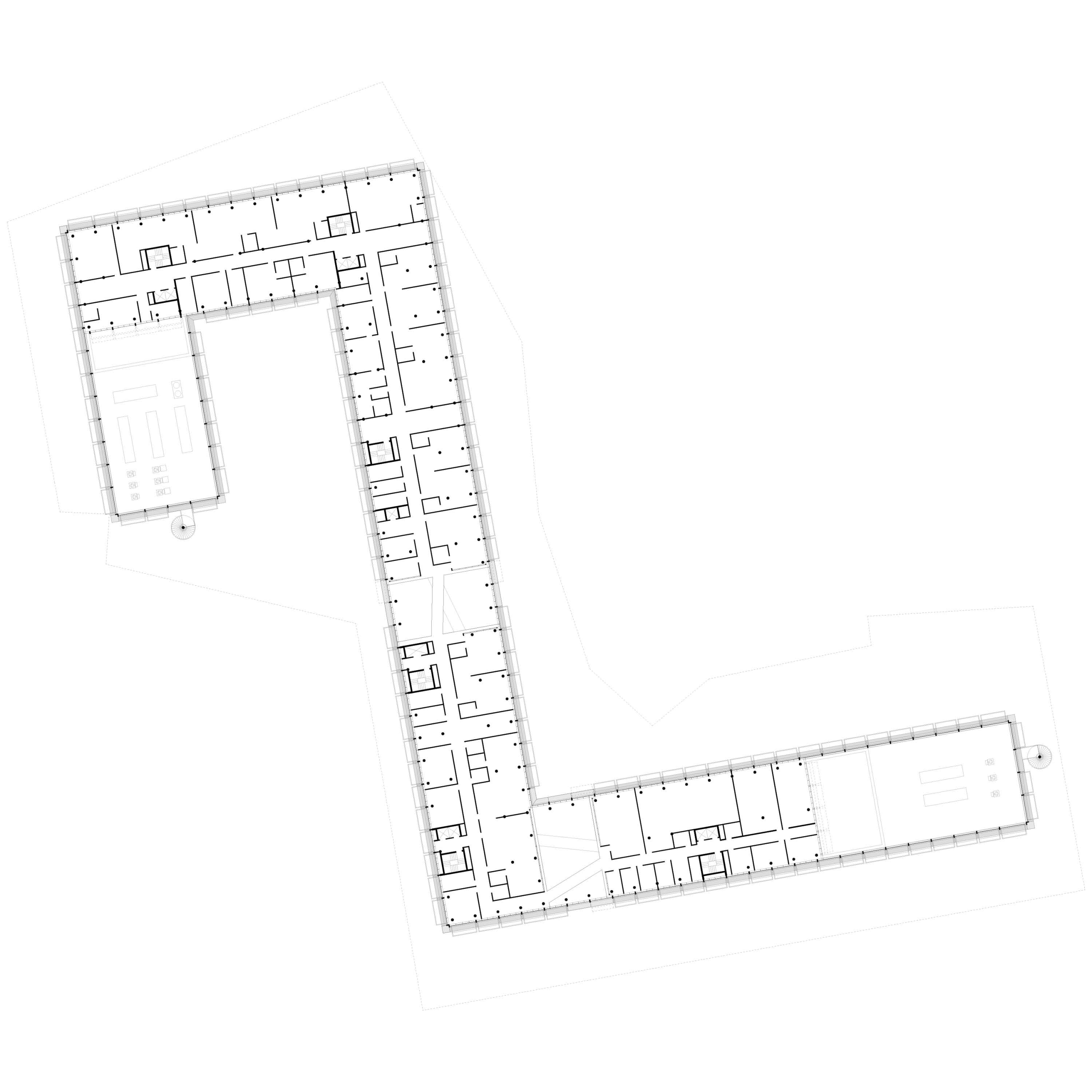
5th-level floor plan
6th-level floor plan
Rooftop-level floor plan
Façade detail
Competition boards