Gulbenkian Institute for Molecular Medicine
Lisbon, Portugal
2026–2025
GIMM
Gulbenkian Institute for Molecular Medicine
The result of a merger between the Gulbenkian Institute of Science (IGC) and the Instituto de Medicina Molecular João Lobo Antunes (iMM), currently operating in Oeiras and at the FMUL/ULS Santa Maria in Lisbon, GIMM —while presently based across these two original sites— seeks a singular space for the effective fusion of all its capabilities and mission. This space is to be integrated into the Lisbon University City hub, maintaining a strong connection to the Santa Maria health park and the Faculties of Medicine and Pharmacy of the University of Lisbon.
Gulbenkian Institute for Molecular Medicine, Lisbon University
Study model
Avenida das Forças Armadas, Lisbon, Portugal
Location: Avenida das Forças Armadas, Lisboa, Portugal
Client: Fundação Calouste Gulbenkian
Scope of services: Architecture and Landscape Architecture
Project brief: Project Design for the Future Facilities of the GIMM – Gulbenkian Institute for Molecular Medicine
Gross floor area: 20,000 sq. m (plus 7,000 sq. m underground)
Construction cost: EUR 56M (estimated)
Project status: Invited Design Competition
Rendering: 4+Arquitetos
Main entrance
Gardens laboratories atrium
Section through main entrance
Section through the vivarium
North façade
South façade
East façade
West façade
Section through auditorium
Rooftop-level floor plan
6th-level floor plan
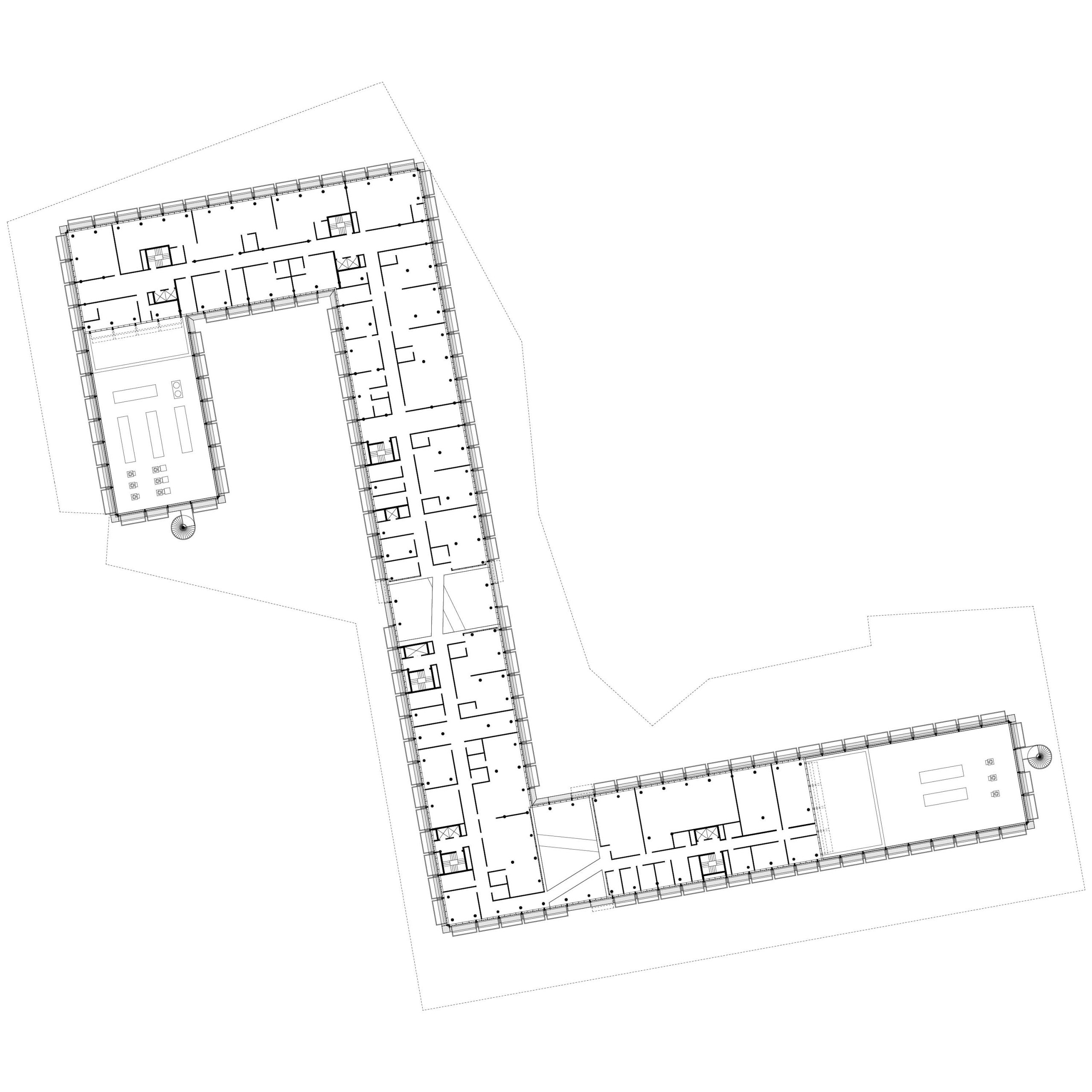
5th-level floor plan
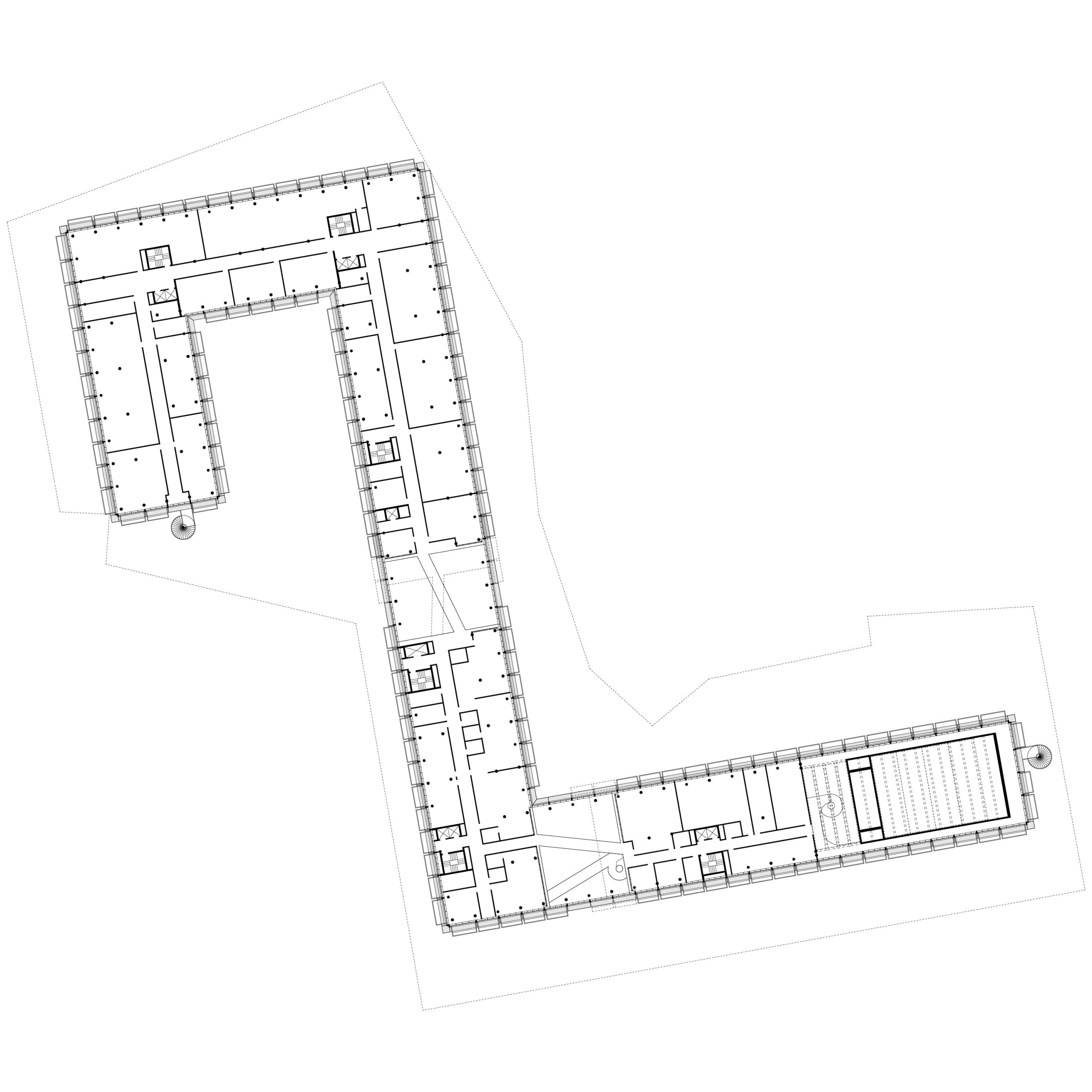
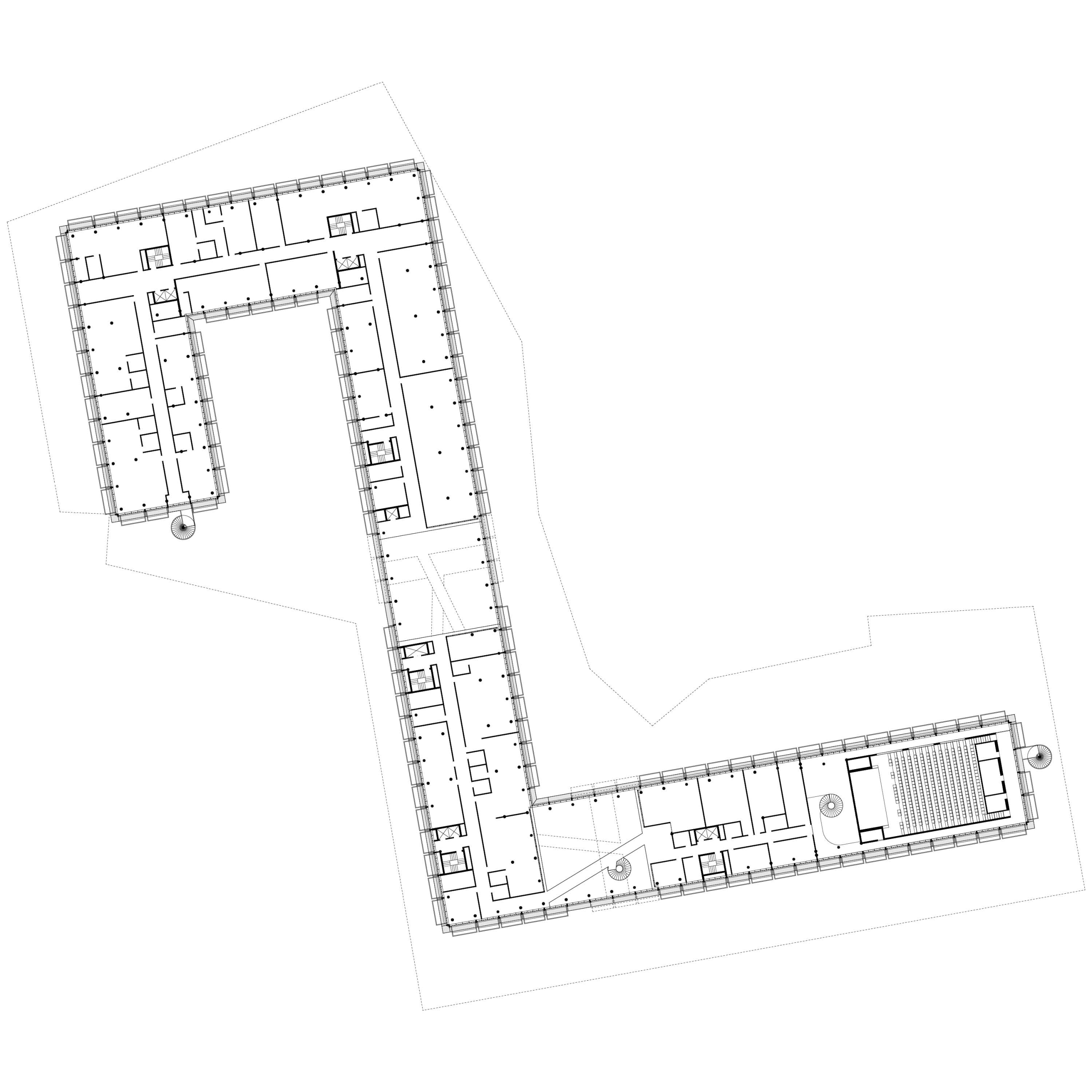
4th-level floor plan
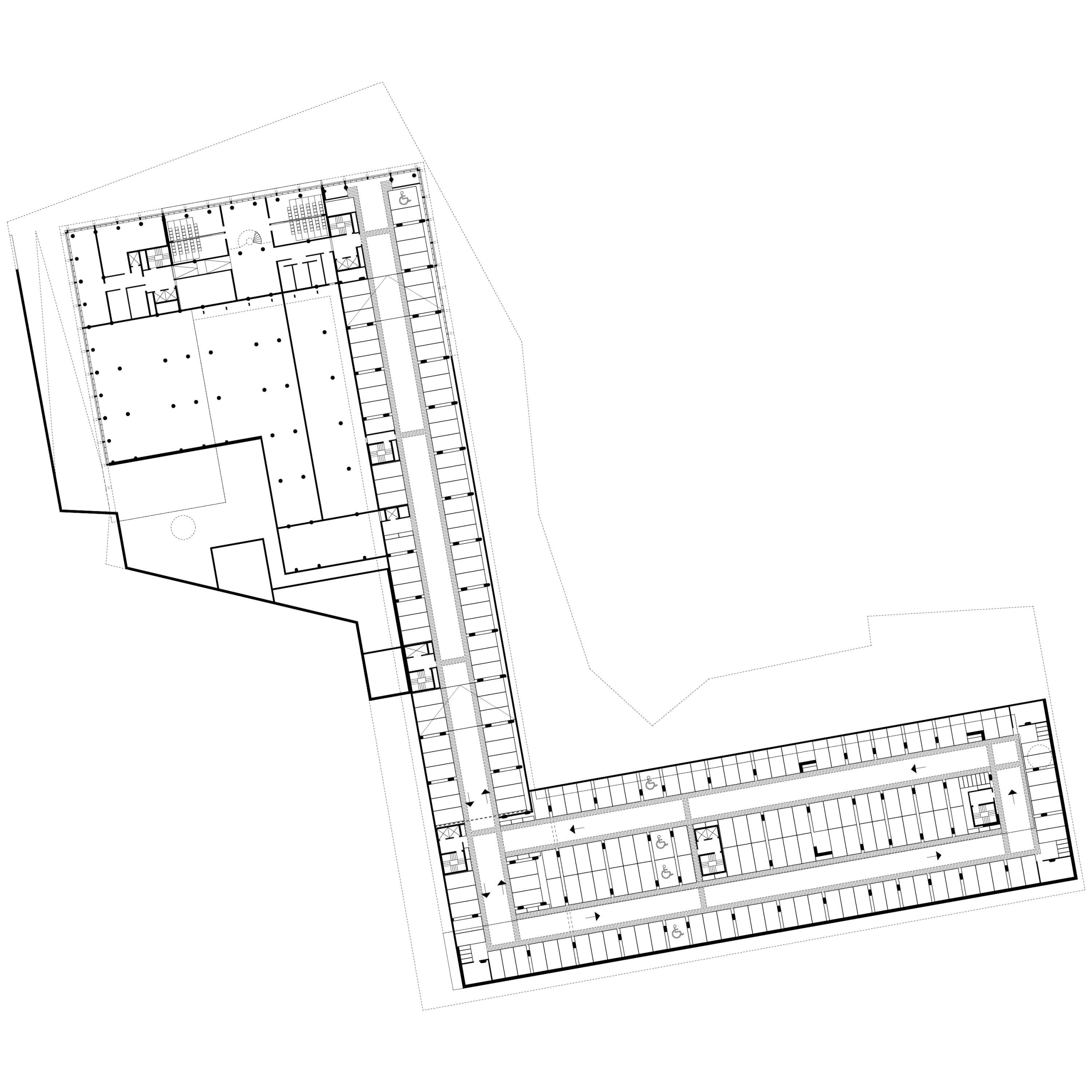
3rd-level floor plan
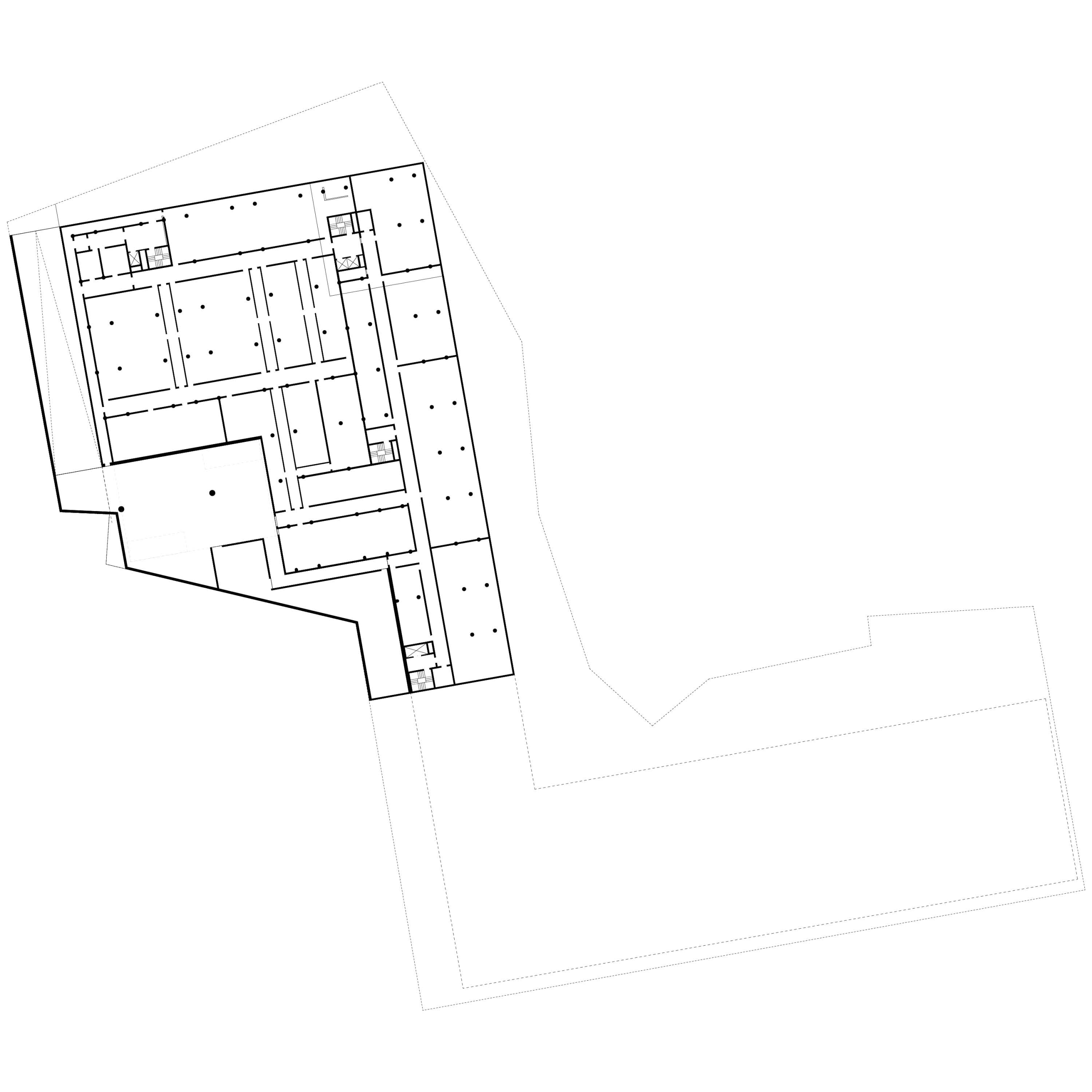
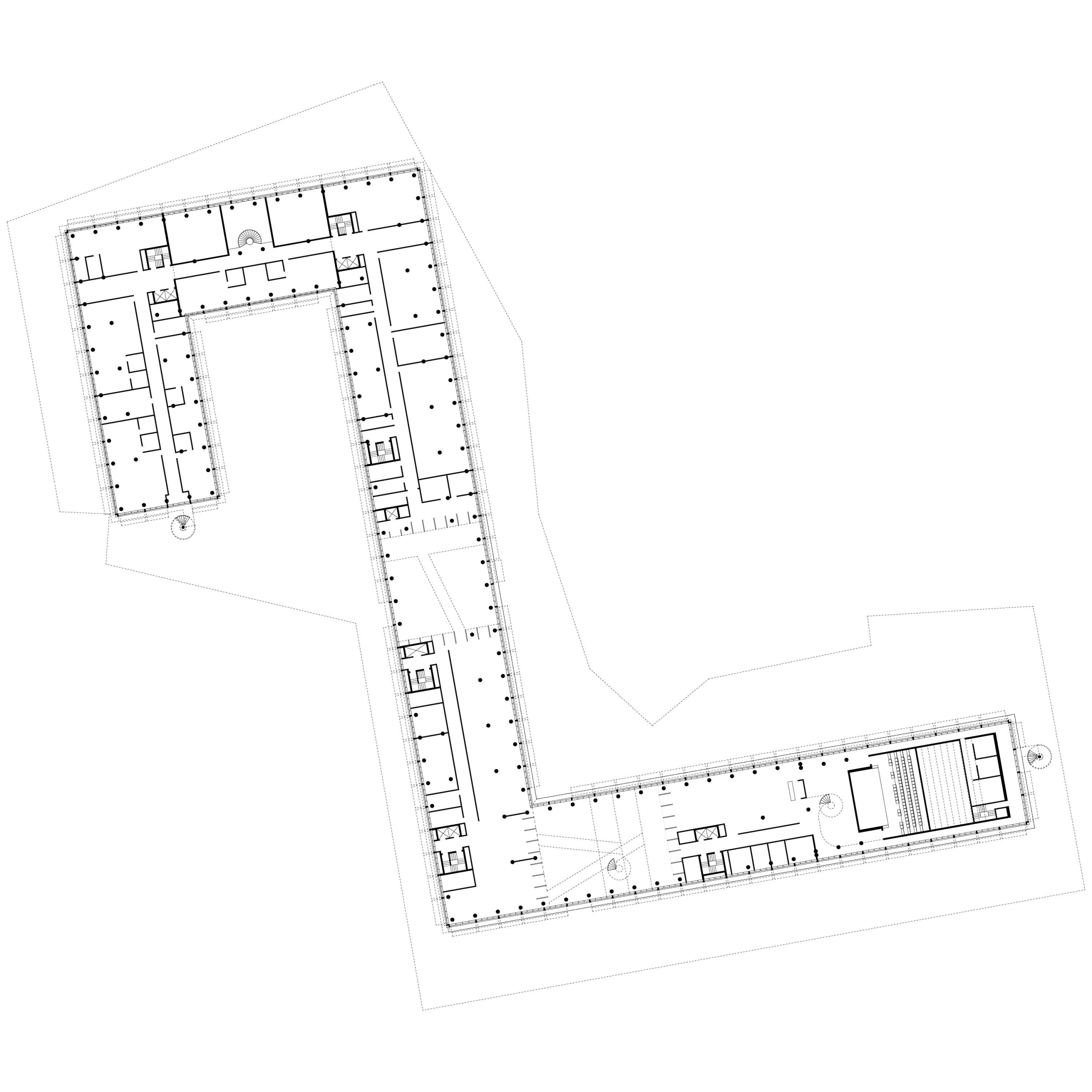
Basement-level floor plan
Typical façade modules 1(A)
Typical façade modules 1(B)
Typical façade modules 2
Typical façade modules 3(A)
Typical façade modules 3(B)
Façade detail
Competition boards
Competition boards
Competition boards