National Forensics Police HQ
Lisbon, Portugal
2010
The project results from a shortlist competition organized by the Portuguese Ministry of Justice for the Headquarters of the National Forensics Police, in Lisbon. The project is divided in two parts: a new building on the corner of José Fontana square, fulfilling a vacant plot as an extension of the current offices, and the renovation of the existent building.
Conceptually, the new building evokes the image of a stronghold where the façades act like an aggregate of volumes of repetitive modules sculptured in compliance with the complex matrix of building restrains, both in terms of height, depth and width. The internal organization is based on a central court as a light provider and ventilation well.
To reinforce the concept, the façade is devised in a system of U-shaped GRC panels interrupted by slim openings that provide daylight inside. The overall presence of the building aims to convey the unambiguous character of its programme: quiet, simple, safe, restrained, robust and long lasting.
Location: Rua Gomes Freire (Lisbon), Portugal
Client: Portuguese Ministry of Justice
Partner: Contractor Somague Engenharia, SA
Operation: Turnkey design-and-build PFI
Project brief: Administrative services, auditorium, crime lab, firing range, temporary detention centre, heliport, etc
Gross built area: 90,000 sq.m of new space plus 15,000 sq.m of renovated areas
Project status: 2010 (competition, 2nd-prize)
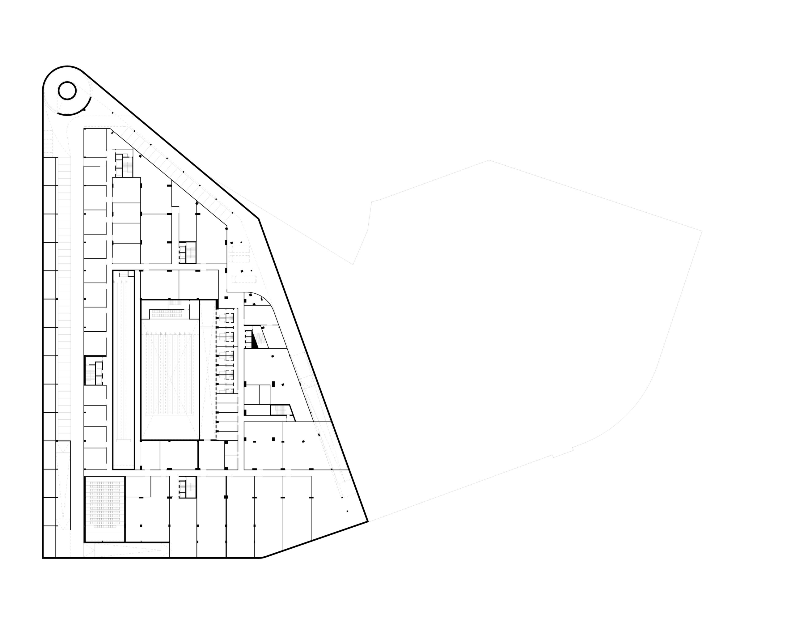
Ground-level floor plan
Second-level floor plan
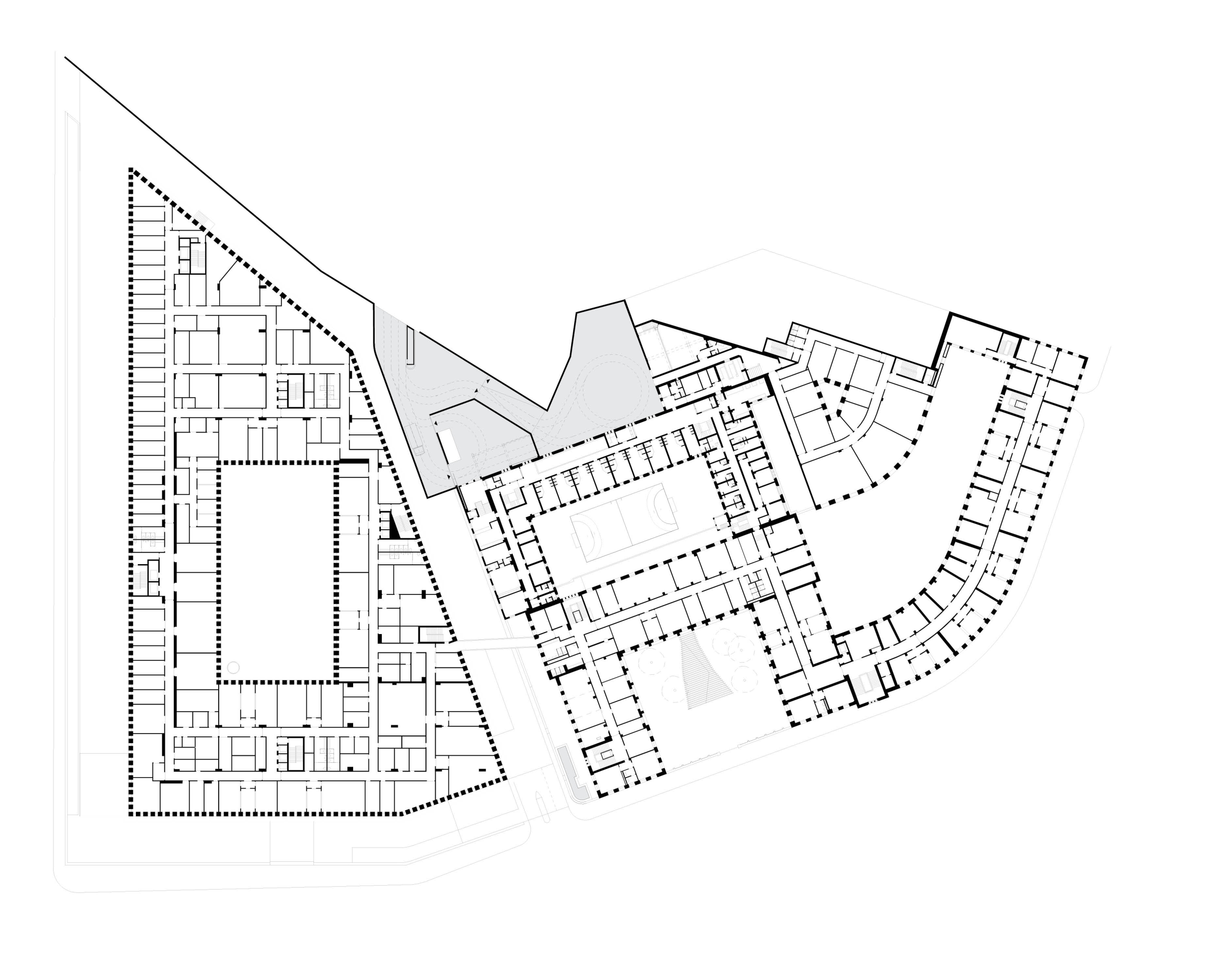
Fourth-level floor plan
Section through courtyard
Second basement-level floor plan
Location
Façade detail