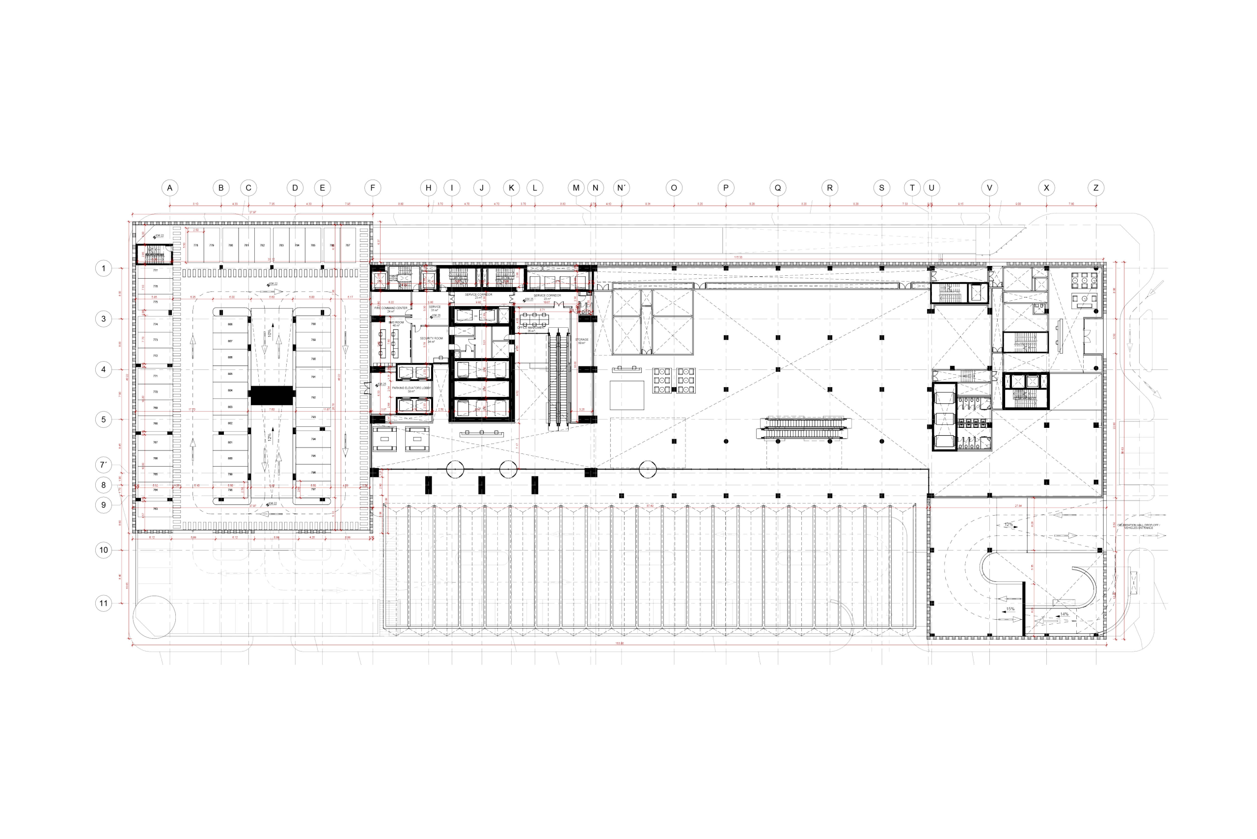
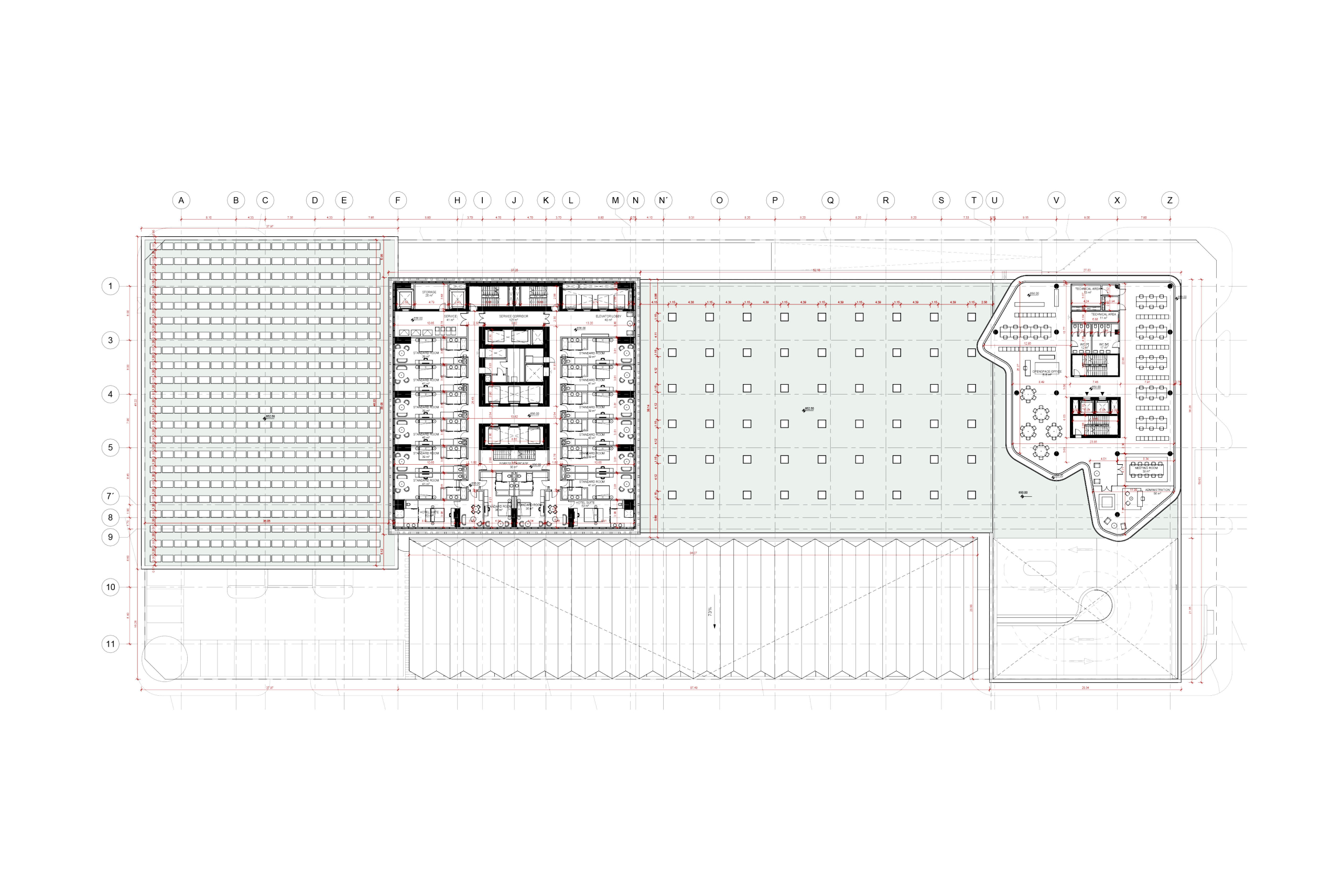
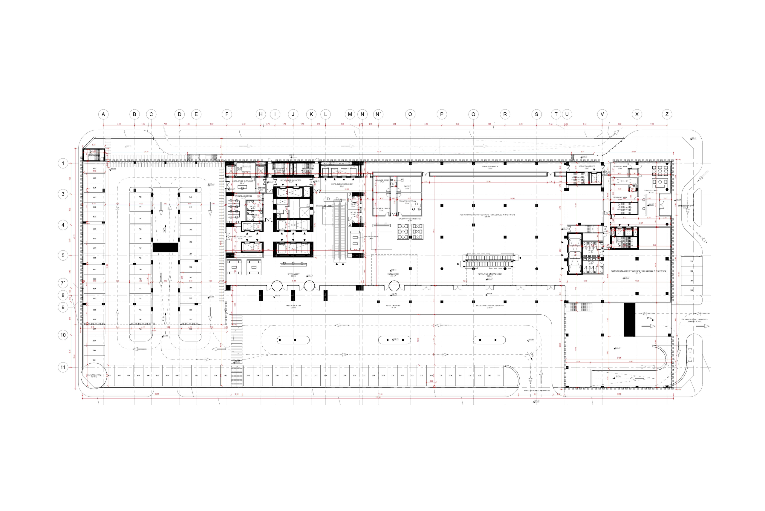
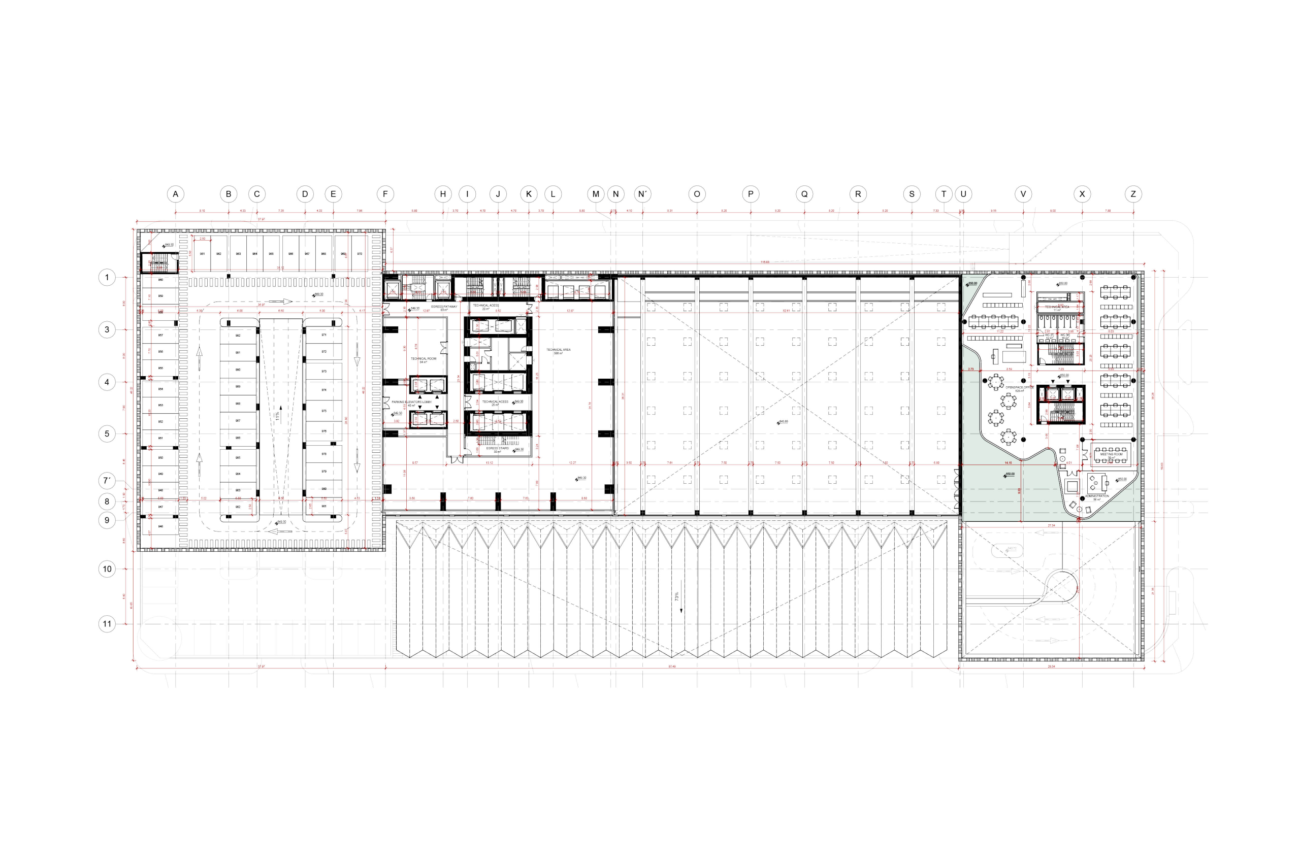
Daman Sky
Riyadh, Kingdom of Saudi Arabia
2026–2024
The 2nd-tallest skyscraper in Riyadh
and also the city’s finest offices
59 levels
Riyadh, Kingdom of Saudi Arabia
Study model
Façade detail
Façade detail