Sousa Martins 28
Lisbon, Portugal
2025–2014
Residential building
of rent-controlled units
in the center of Lisbon’s CBD
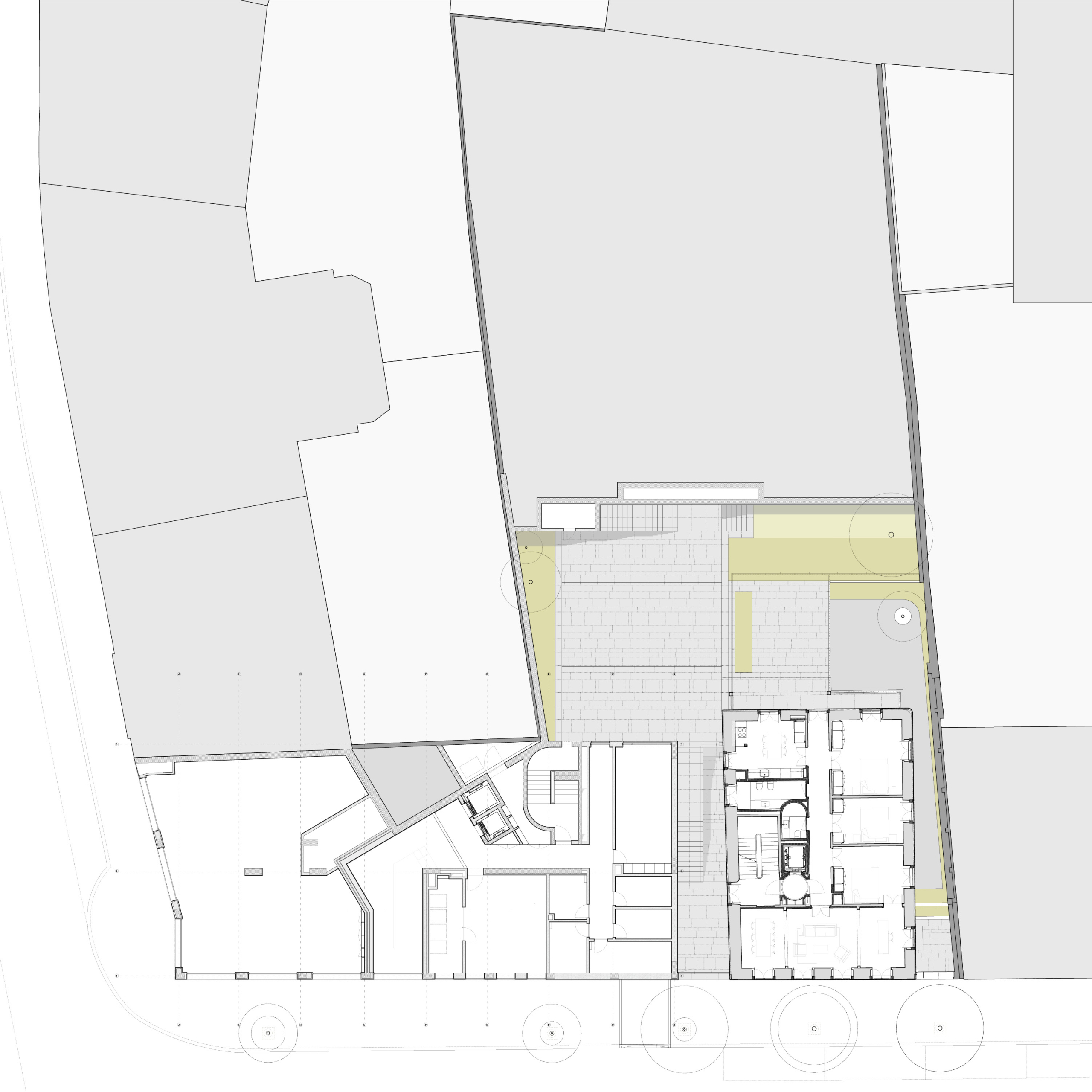
The project is located in Rua Sousa Martins which is a parallel street to the busy Avenida Fontes Pereira de Melo, also known as Lisbon’s central axis. The whole area is part of the Ressano Garcia plan which, from the premises 18th-century Pombaline plan, reconfigured and expanded the plan of the capital in the spirit of Haussmann (circa 1880). With its large perimeter blocks rented by the emerging middle classes, the Avenidas Novas (new avenues) was mostly built and crystalized under the influence of Art Nouveau and Art Deco, — sometimes quite substandard both in terms of construction and design.
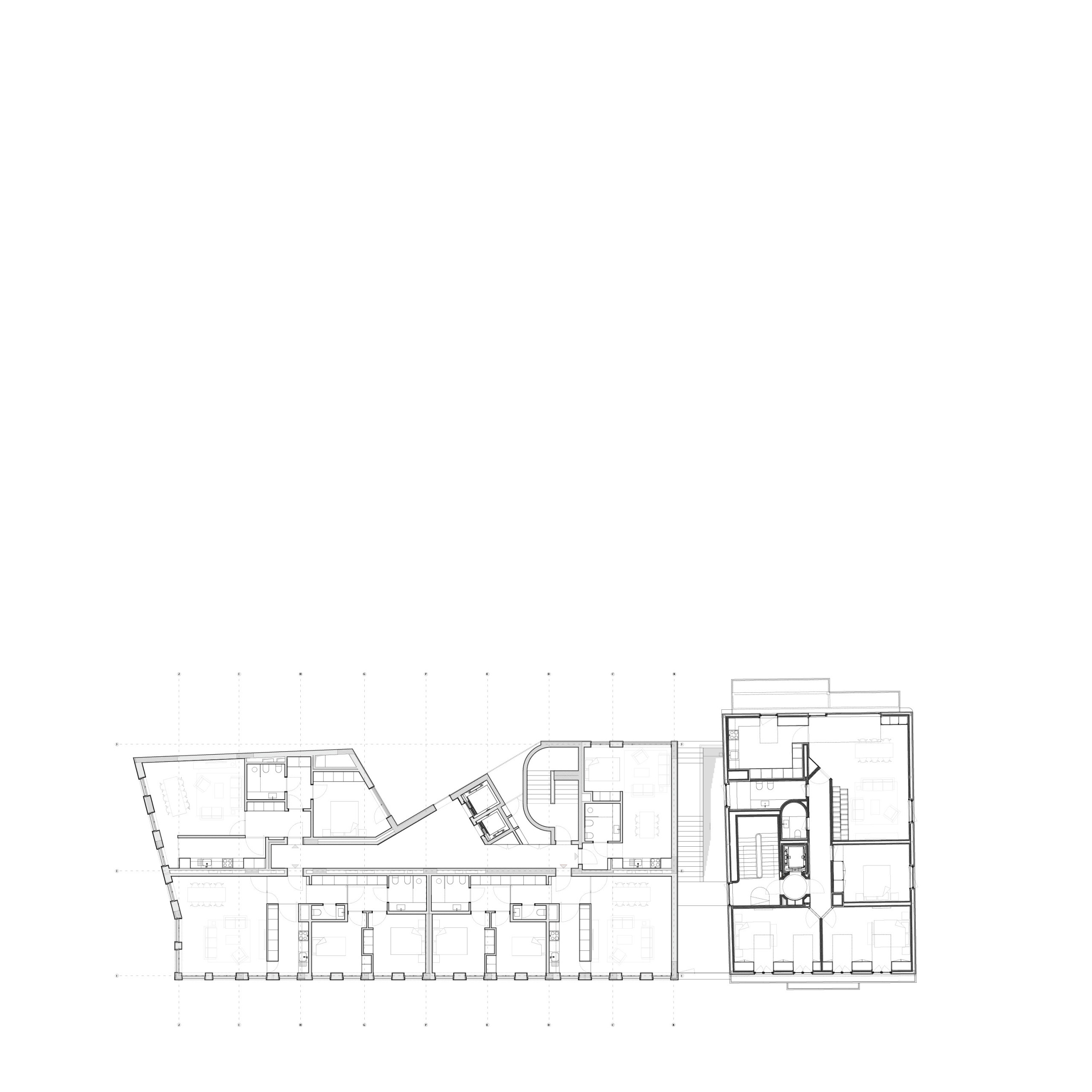
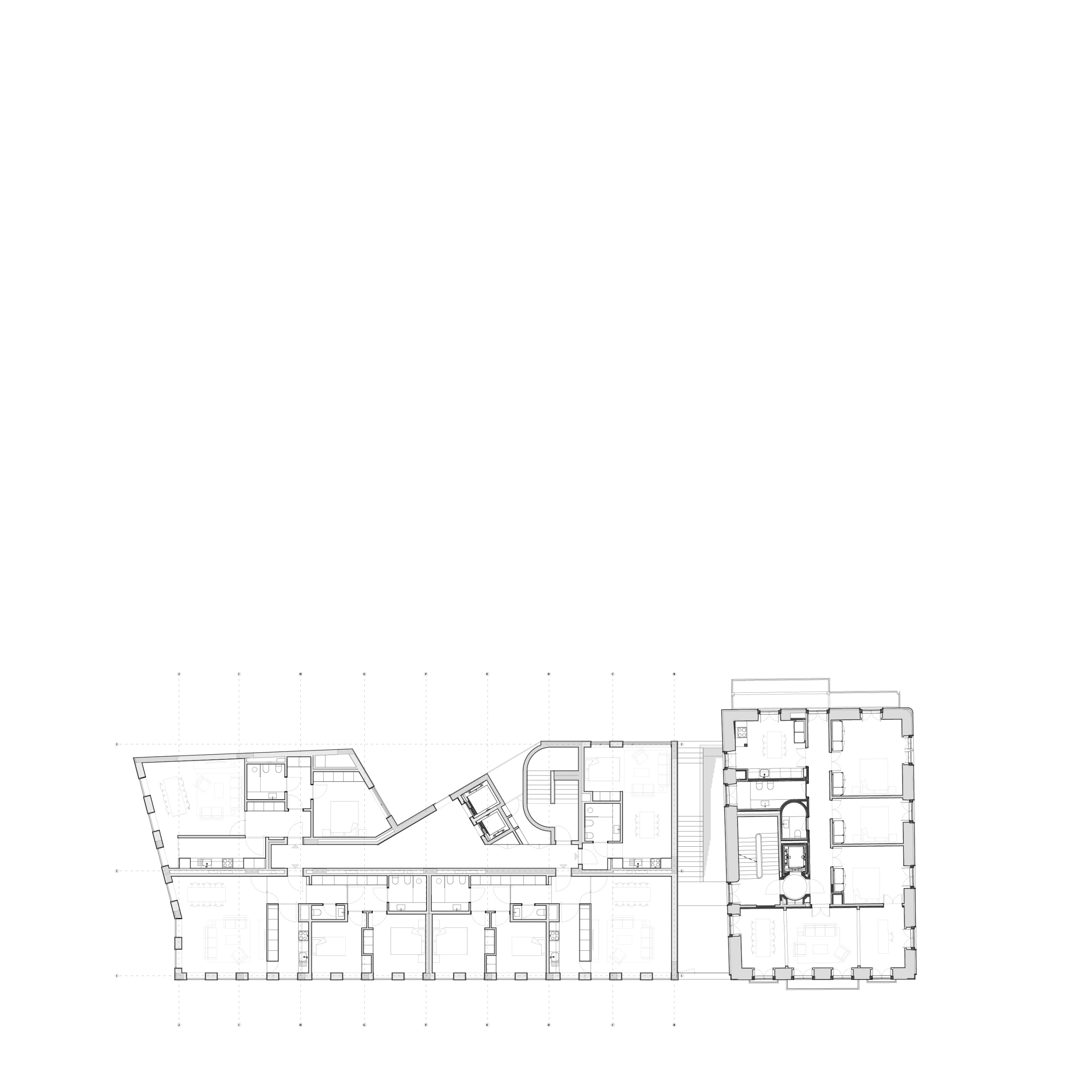
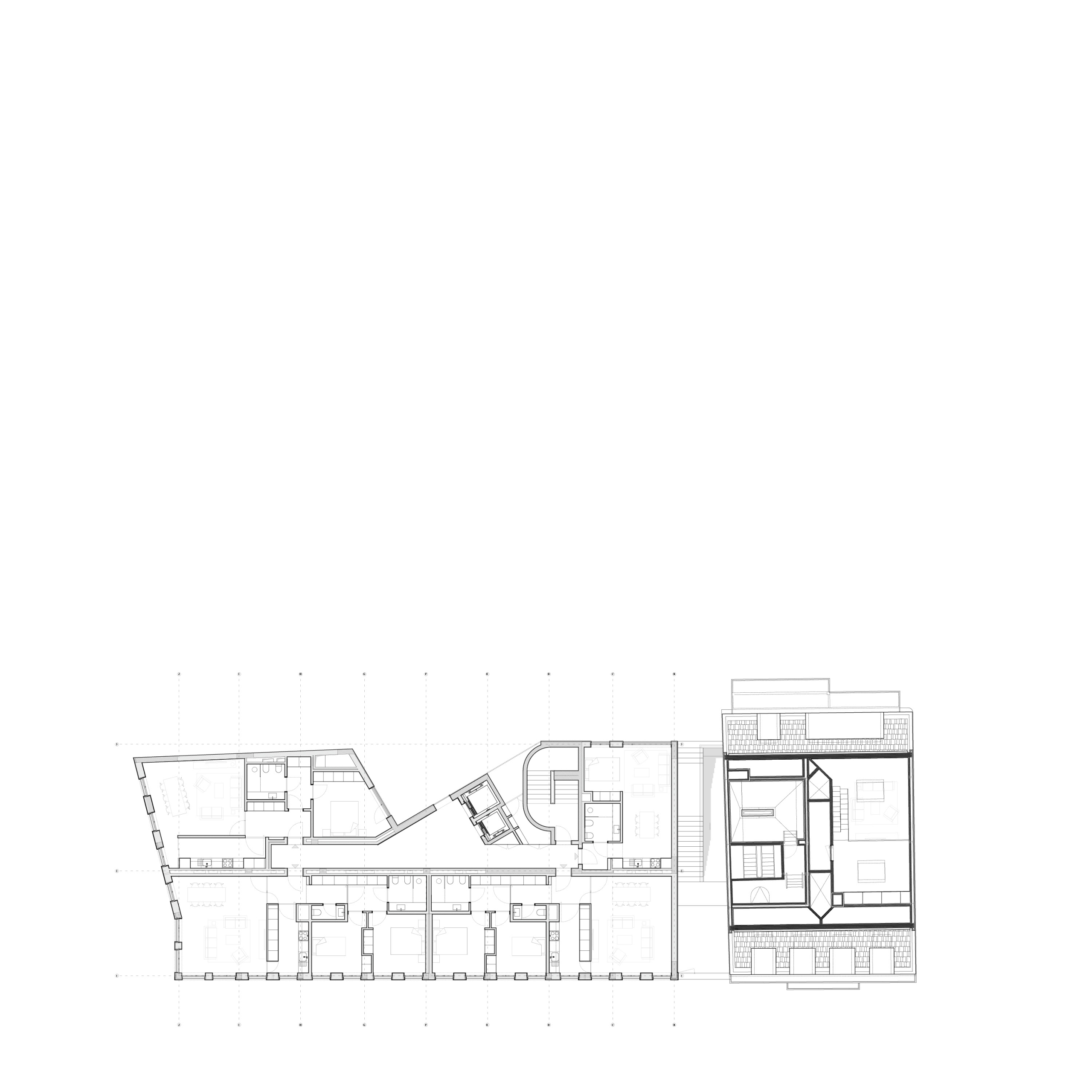
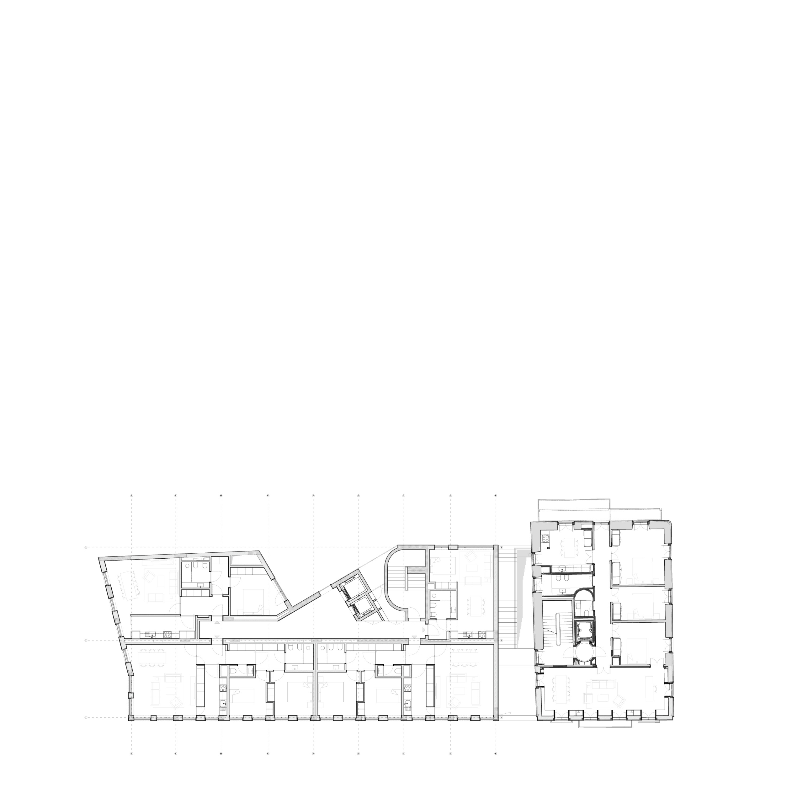
The 8-storey building is located in prominent corner with Tomás Ribeiro street and it consist in studios and 2-bedroom apartments purposely designed for the rental market, in addition street retail with parking and private storage in 3 basement levels. The simple geometry of the façade seeks both an alignment with the adjacent buildings as well as mediating the street incline by a stepped cornice, with a window composition that widens as floors rise. In terms of materiality, the design summons Lisbon’s traditional façade combination of a limestone plinth with handmade tiled upper storeys. The adjacent 3-storey building dating from the early 1900s is part of the property and will be renovated and increased in two floors with a mansard zinc roof.
Rua Sousa Martins
Lisbon, Portugal
Rua Sousa Martins elevation
Rua Tomás Ribeiro elevation
Rooftop-level floor plan
Third basement-level floor plan
Second basement-level floor plan
First basement-level floor plan
Ground-level floor plan
Mezzanine-level floor plan
First-level floor plan
Secoond-level floor plan
Third-level floor plan
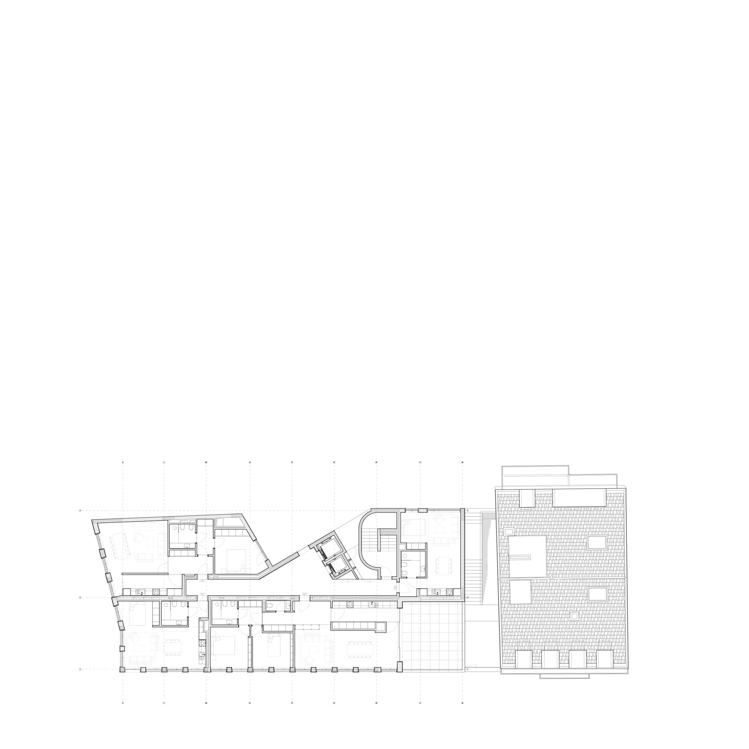
4th-level floor plan
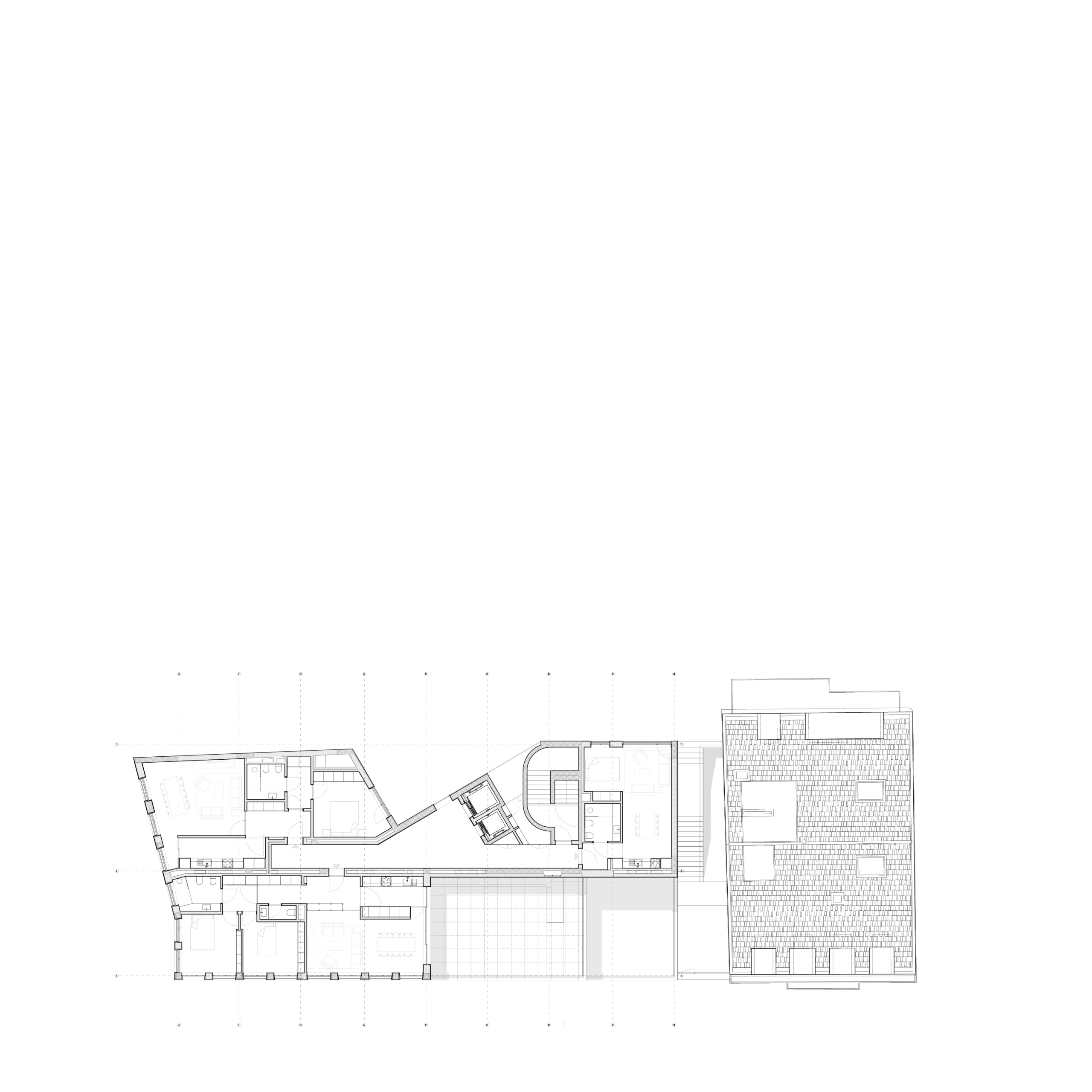
5th-level floor plan
6th-level floor plan
7th-level floor plan
Location: Rua Sousa Martins 28, Lisbon
Client: Santa Casa da Misericordia de Lisboa
Scope: Architecture
Project brief: Residential building with 34 units for renting and street retail
Gross built area: 3,400 sq. m (main building) 900 sq. m (renovation) plus 1,800 sq. m of basement parking
Project Status: 2014 (concept design) — 2025 (built)
Photography: Jaime Ferreira