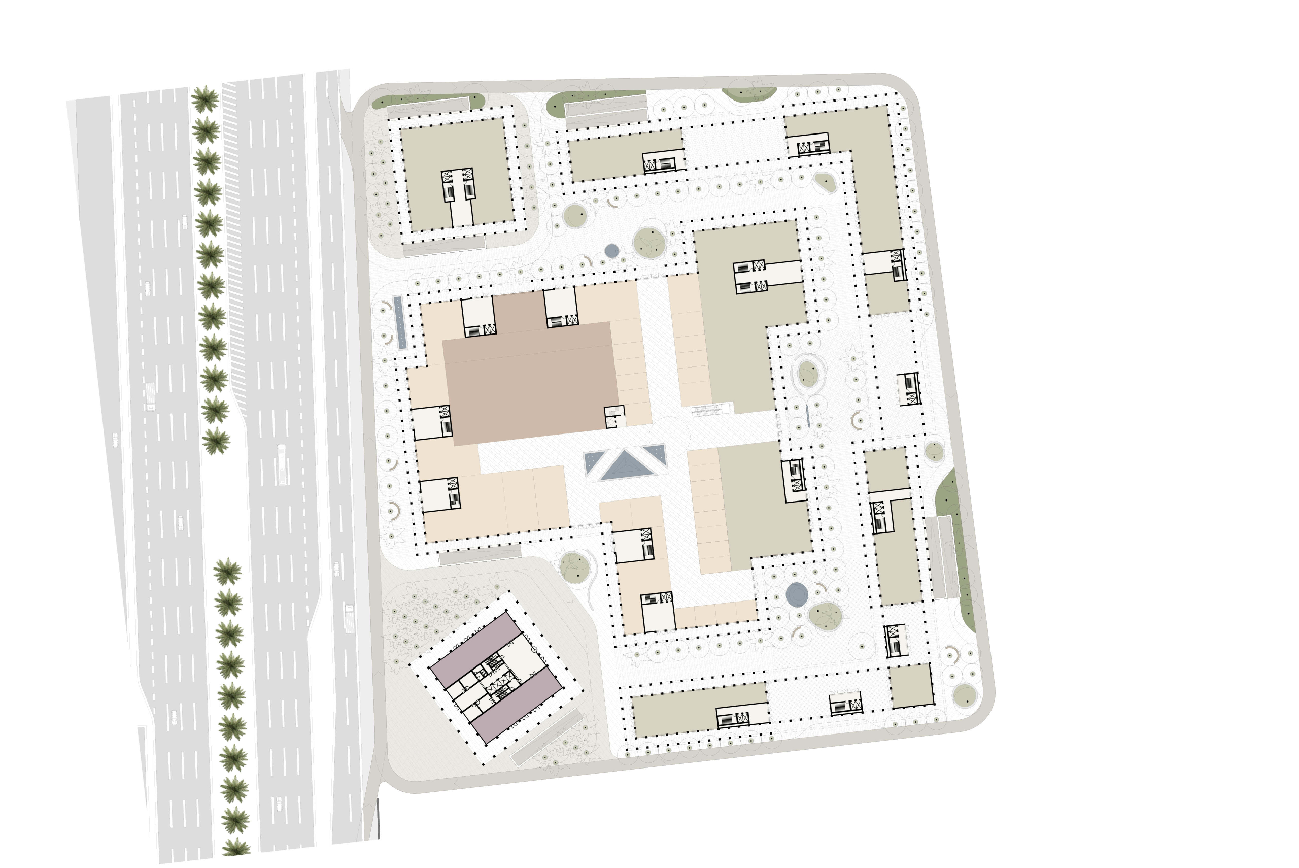
The Garden Village
Jeddah, Kingdon of Saudi Arabia
2025
A contemporary interpretation
of Hejazi Architecture
with a touch of mediterranean resort lifestyle
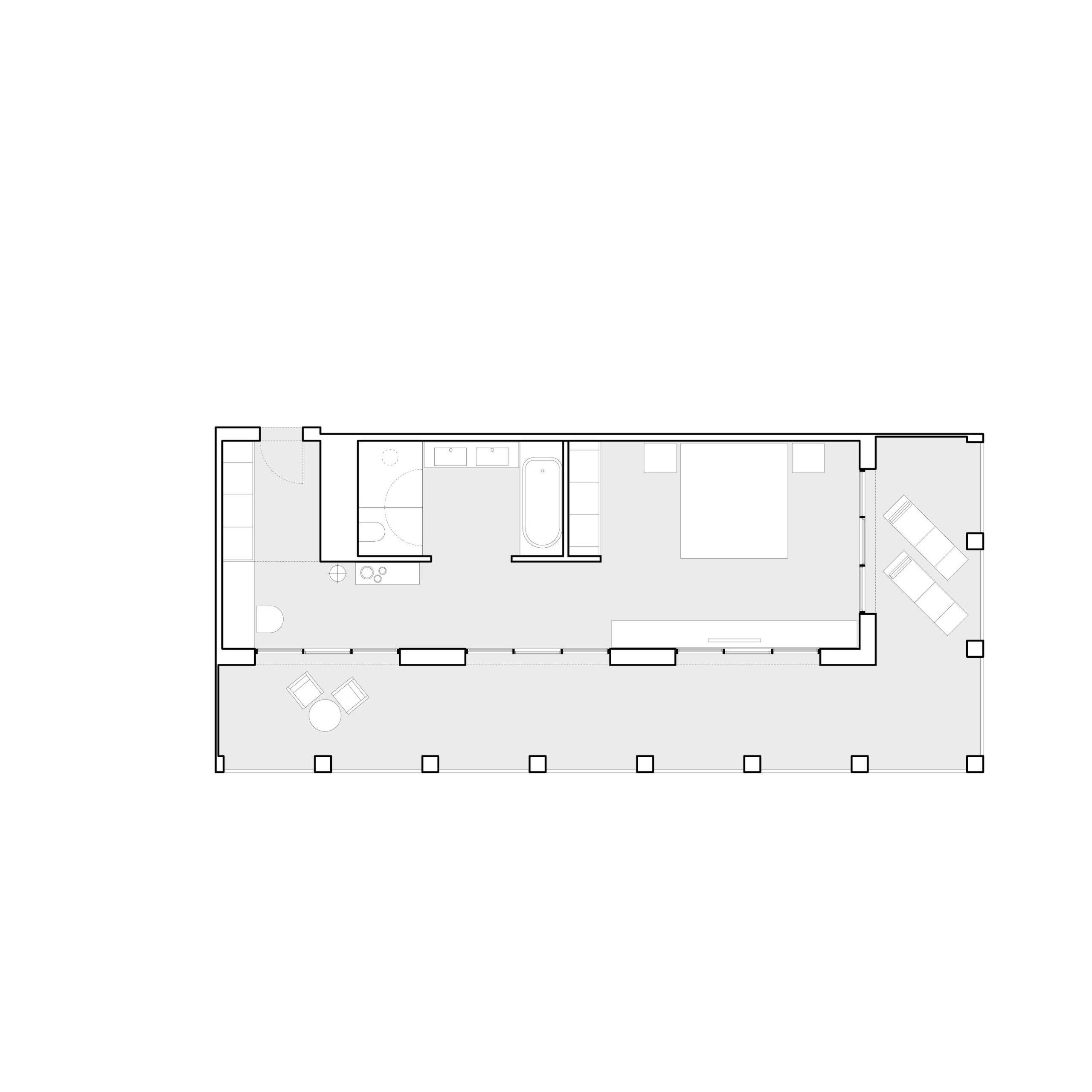
Boutique hotel
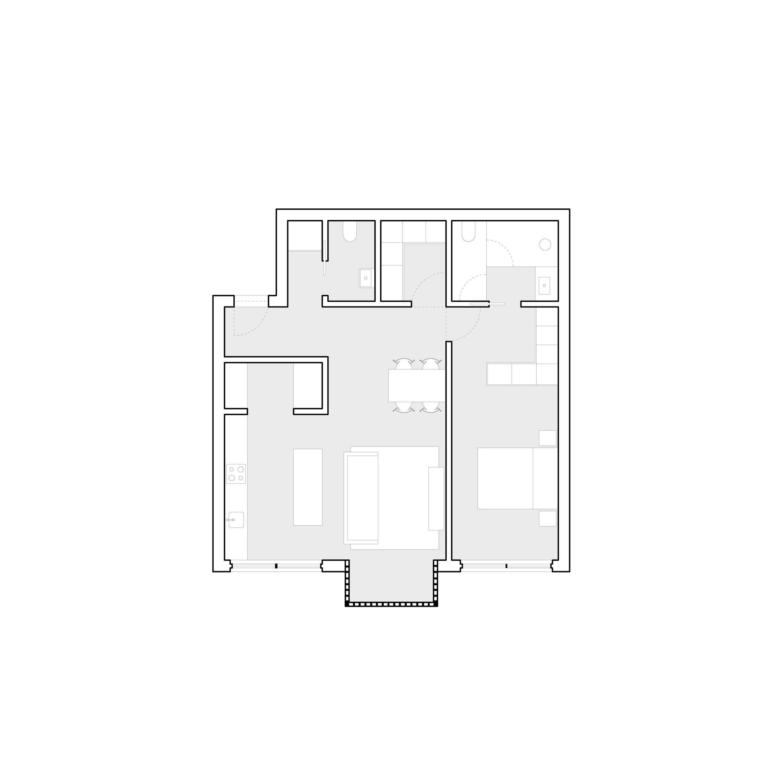
Residential community
Mixed-use
West elevation
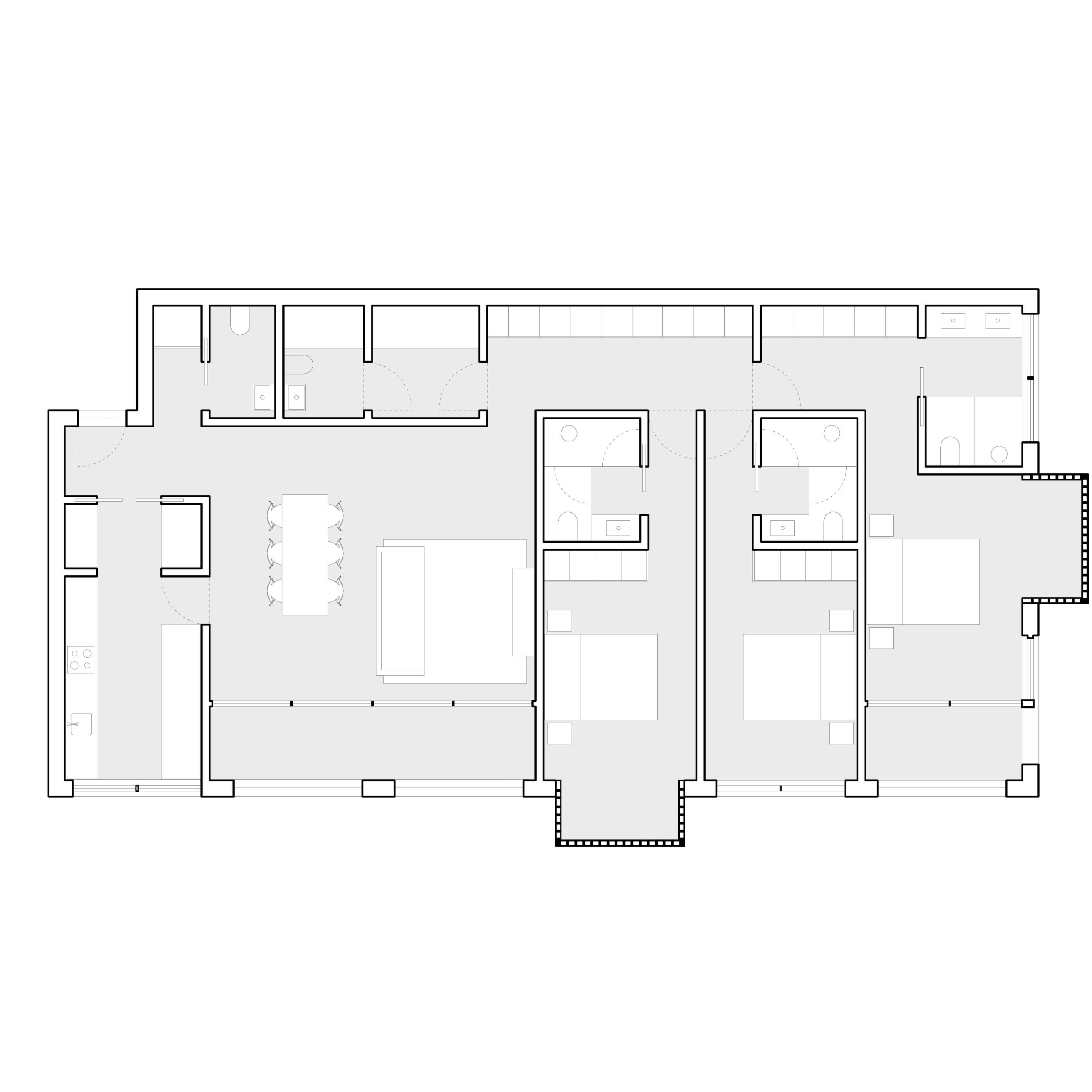
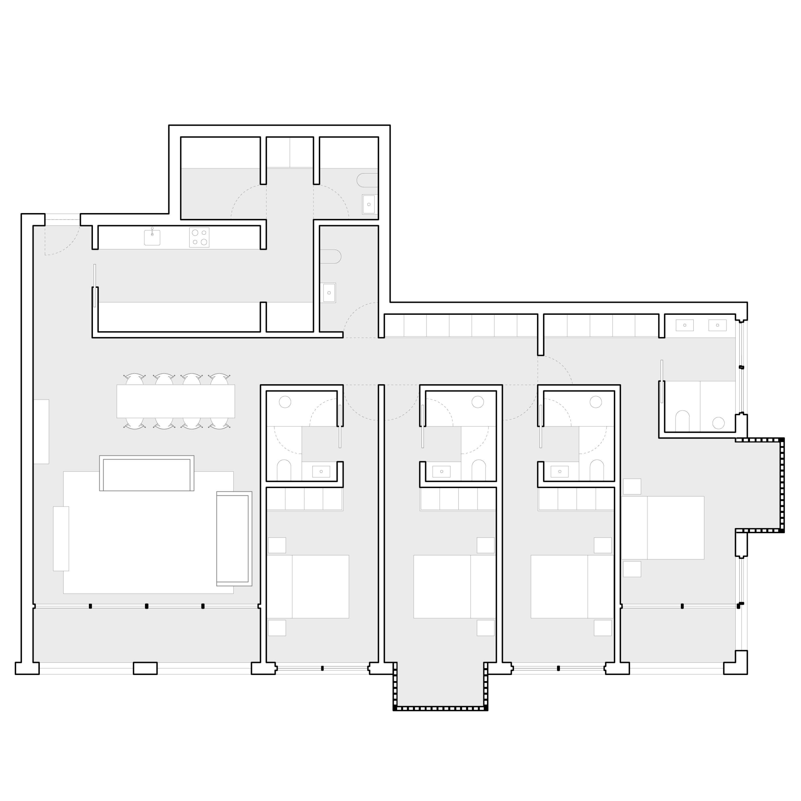
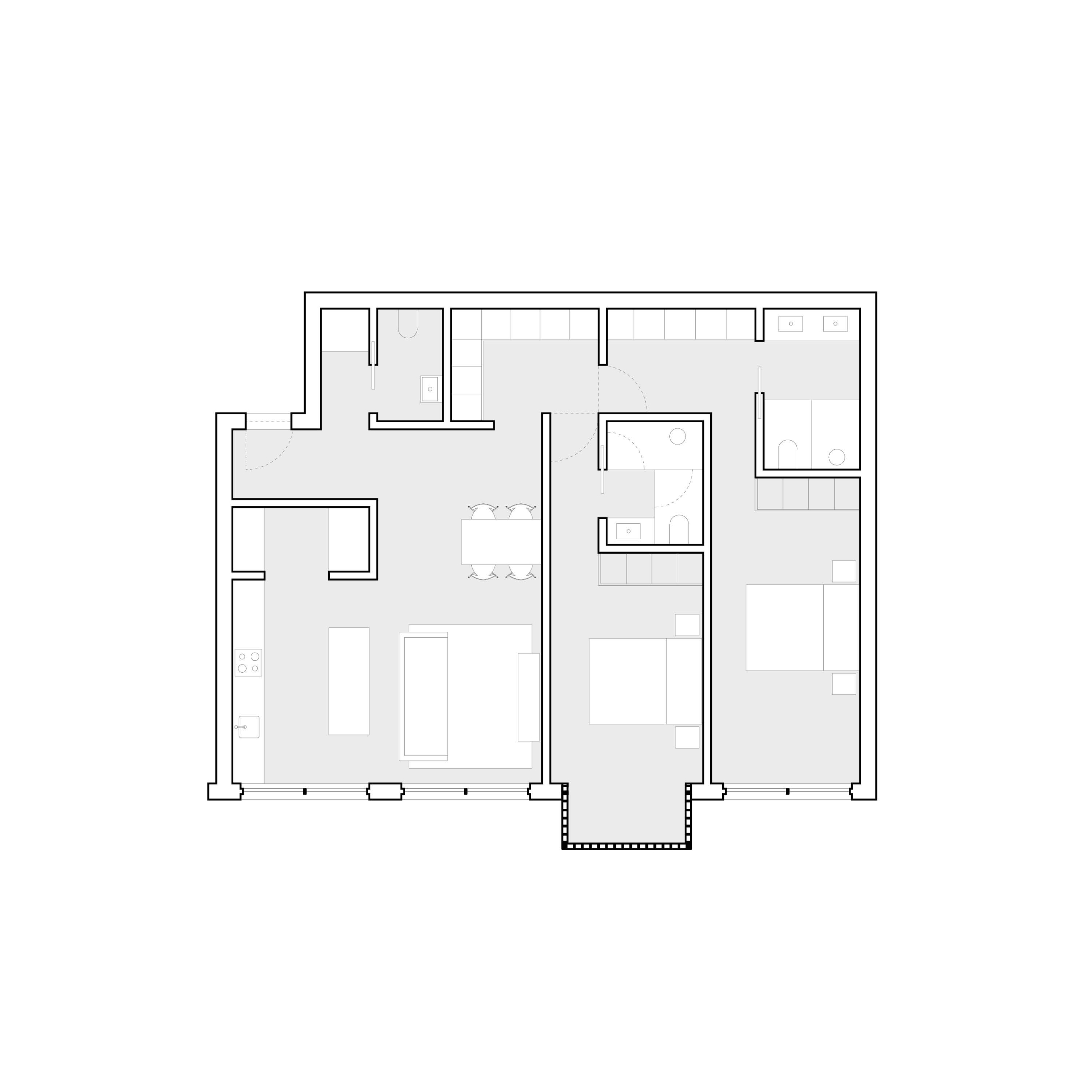
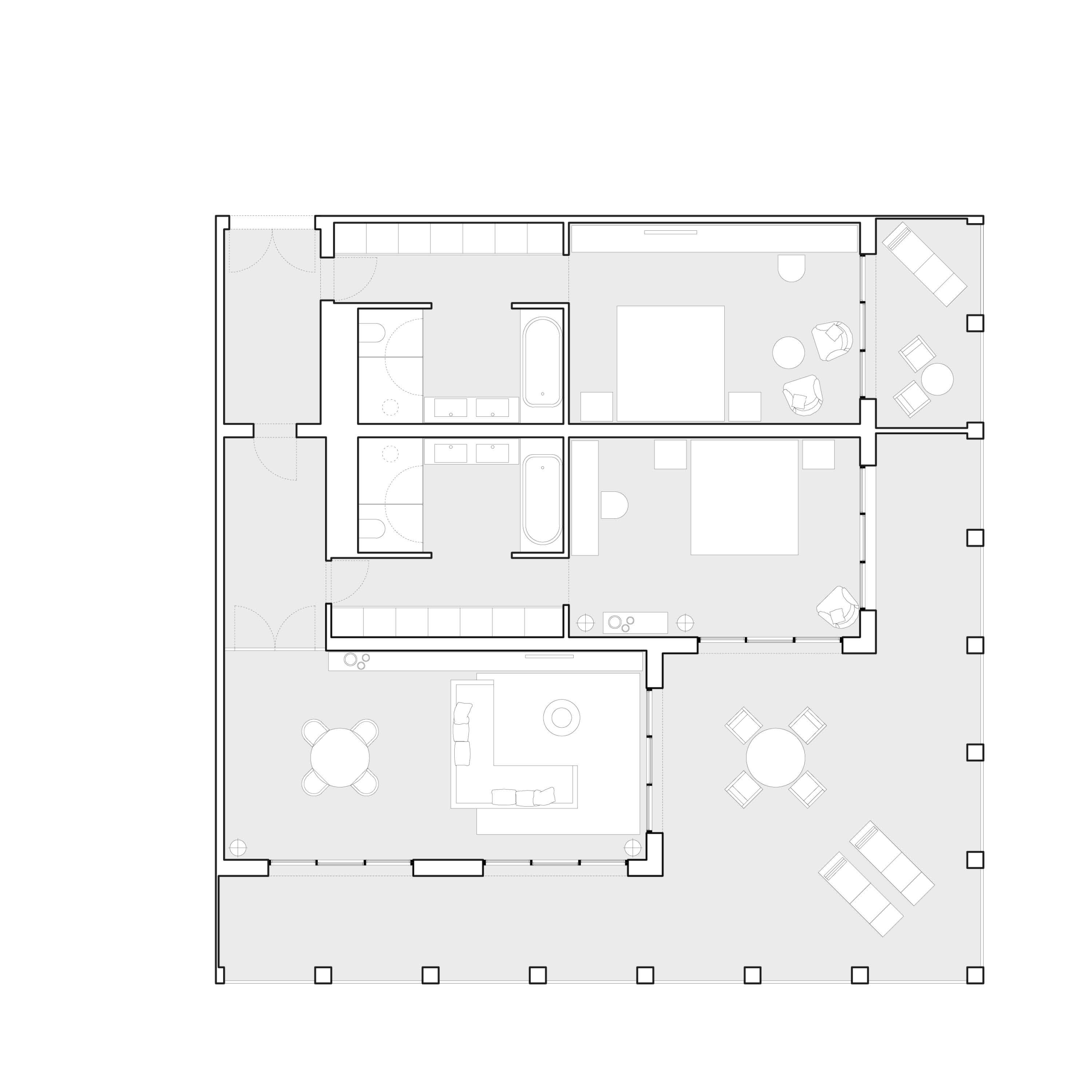
Typologies